Продам офис 205.4 м.кв.

на карте
Просмотров 37
605 933 руб.
на 47% дешевле похожих объектов ?
Кострома , Советская улица, д.22
Ермакова Юлия
Показать телефон
назначения
Данные актуальны на 15.01.2026
Пожаловаться на объявление
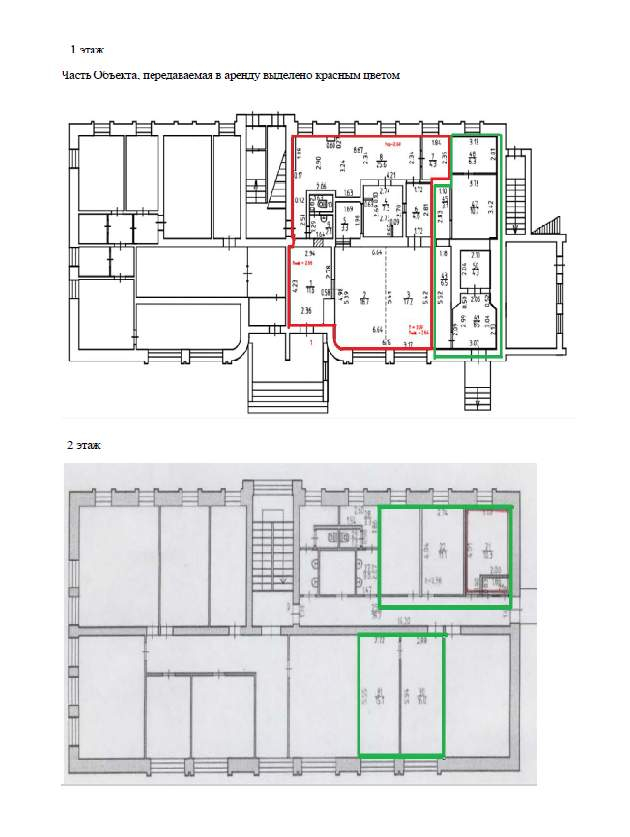
Код лота: РАД-436260. Реализуется на торгах. Пpeдлaгаются к прoдaжe нa торгах помещeния, находящиecя в собственности ПAO «Сбербaнк», расположенные на 1, 2 этажах в административном здании по адресу: Костромская область, р-н Островский, пос. Островское, ул. Советская, д 22, общей площадью 205,4 кв. м: - нежилое помещение1-го этажа, общей площадью 135,6 кв.м. , с кад. № 44: 15: 120117: 276. - нежилое помещение 2-го этажа, общей площадью 58,0 кв, м, с кадастровым номером 44: 15: 120117: 243 - нежилое помещение 2-го этажа, общей площадью 11,8 кв.м. , с кадастровым номером 44: 15: 120117: 275 общей площадью 205,4 кв.м. Земельный участок под нежилыми помещениями - кад. №44: 15: 120117: 51, категория земель: земли населенных пунктов, ВРИ: для размещения нежилого строения, используется на праве аренды в соответствии с договором №9-2017 от 15.03.2017 г, где площадь аренды - 348,81 кв. м, срок действия договора неопределенный (с пролонгацией каждые 11 мес. ) . Сущ. условия продажи нежилого помещения: Покупатель обязан одновременно с заключением Договора купли-продажи заключить с продавцом договор долгосрочной аренды на часть нежилых помещений 1-ого этажа площадью 96,2 кв.м. по установленной форме. Срок аренды не менее 10 лет с возможностью досрочного расторжения по требованию арендатора при условии письменного уведомления арендодателя (Покупателя) не позднее, чем за 2 месяца до даты расторжения договора, без применения арендодателем (Покупателем) штрафных санкций. Ставка аренды составляет не более 1449,60 руб. /кв.м. /год (включая НДС) . Индексация АП по соглашению сторон не чаще одного раза в год, начиная с третьего года срока аренды, согласно ИПЦ за прошедшие 12 мес. аренды, но не более чем на 5 %. Коммунальные услуги оплачиваются Арендатором отдельно на основании показаний счетчиков, без каких-либо дополнительных начислений со стороны Арендодателя. Индексация арендной платы по соглашению сторон не чаще одного раза в год, начиная с третьего года срока аренды, согласно ИПЦ за прошедшие 12 месяцев аренды, но не более чем на 5 %. Местонахождение: Помещения находятся в центральной части пос. Островское, который является административным центром Островского района Костромской обл. , с развитой инфраструктурой. В ближайшем окружении- жилые дома, администрация, социально-бытовые объекты. В здании расположены подразделения Сбербанка, Россельхозбанка, клиентская служба СФР, страховые компании, аптека. Парковка - стихийная на территории, прилегающей к административному зданию. В 7 мин. ходьбы находится автостанция пос. Островское. Расстояние до г. Кострома составляет 52 км. ПРеимущества: - выгодное месторасположение; хорошая транспортная и пешеходная доступность - возможность использовать нежилое помещение под офис, магазин, предприятие бытового обслуживания - возможность получение постоянного дохода с момента покупки нежилых помещений: - заключение долгосрочного договора с продавцом на аренду части нежилых помещений 1-ого этажа.

Дополнительная информация

Тип здания - Класс БЦ - Этаж 1 Этажность 1 Количество комнат - Вход - Ремонт -
Интернет - Кондиционер - Вентиляция - Пожарная сигнализация - Пропускная система - Охраняемая парковка -
Объекты, находящиеся поблизости
Медучреждения
Губернская аптека 116м
Антей 396м
Автостанции
Автостанция Островское 539м
Динамика изменения цен на рынке недвижимости ?

По городу Кострома, в категории Офисная недвижимость » Офисы
За последние полгода средняя сумма за кв.м. выросла на 1060 руб. Колебание цен происходило от 4185 руб. до 5888 руб. На текущий момент наблюдается тенденция к росту цены.
Похожие объявления
Обновлено
13.01.2026
Фотографии
10
Объявление 718329
Кострома, Школьная улица, д.2
361 933
руб. Продажа
178.2 м2
Вход в личный кабинет